PGR Celina 7 Luka Dunav Grenfild 2 Stara Utva i Staklara
Izradi Plana se pristupilo na onovu Odluke o izradi planova generalne regulacije u skladu sa Zakonom o planiranju i izgradnji na celom građevinskom podr [...]
PGR Celina 3 Misa sa grobljem
Polazne osnove Prostor koji je predmet ovog Plana zahvata značajnu površinu izgrađenog, delimično izgrađenog i neizgrađenog građevinskog zemljišta u ok [...]
PGR Celina 1 Centar Izmena i dopuna
Uvod Izradi Izmena i dopuna pristupilo se na osnovu Odluke o Izmenama i dopunama plana generalne regulacije Celina 1 – širi centar (krug obilaznice) u [...]
PGR Banatsko Novo Selo
Uvod Izradi Plana se pristupilo na osnovu Odluke o izradi plana generalne regulacije za naseljeno mesto Banatsko Novo Selo ("Službeni list grada Panče [...]
PGR Celina 4a i 4b Karaula
Uvod Izradi Plana se pristupilo na osnovu Odluke o izradi planova generalne regulacije u skladu sa Zakonom o planiranju i izgradnji na celom građevinsko [...]
PGR Celina 6 Bavaništanski put-Stari Tamiš-Nova deponija
Uvod Izradi Plana se pristupilo na osnovu Odluke o izradi planova generalne regulacije u skladu sa Zakonom o planiranju i izgradnji na celom građevinsko [...]
PGR Celina 5 Kudeljarski nasip
Izradi Plana se pristupilo na osnovu Odluke o izradi planova generalne regulacije u skladu sa Zakonom o planiranju i izgradnji na celom građevinskom pod [...]
PGR Celina 10 Potamišje i Gradska šuma
Uvod Izradi Plana se pristupilo na osnovu Odluke o izradi planova generalne regulacije u skladu sa Zakona o planiranju i izgradnji na celom građevinskom [...]
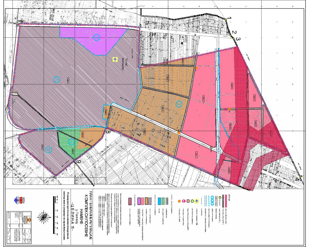
PGR Celina 11 Kompleks posebne namene
Uvod Izradi Plana generalne regulacije Celina 11 – Kompleksi posebne namene u Pančevu (u daljem tekstu: Plan) se pristupilo na osnovu Odluke o izradi p [...]
PGR Celina 9 Green Field 1 i 3
Uvod Izradi Plana se pristupilo na osnovu Odluke o izradi planova generalne regulacije u skladu sa Zakona o planiranju i izgradnji na celom građevinskom [...]
















